網旭科技辦公室裝修設計案例
瀏覽數: | 更新時間:2018-05-15 09:15:04
- 項目類型
- IT/互聯網/科技
- 工程造價
- 35萬
- 項目面積
- 400-800㎡
- 設計師
- 羅永凱
- 完工時間
- 裝修用材
- 木材/大理石等
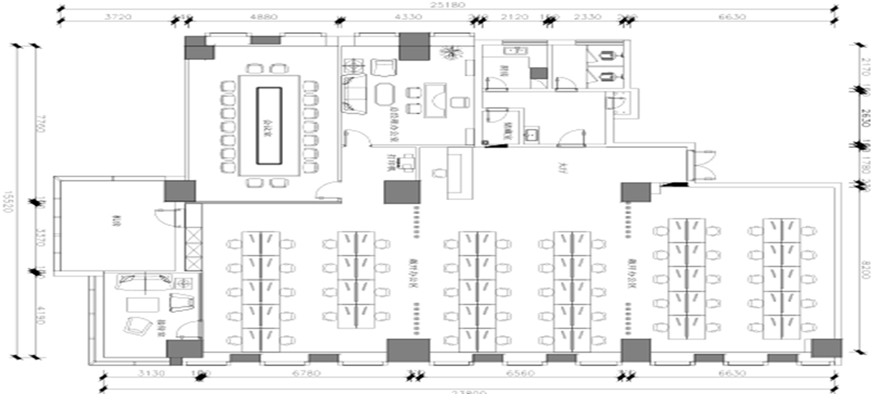
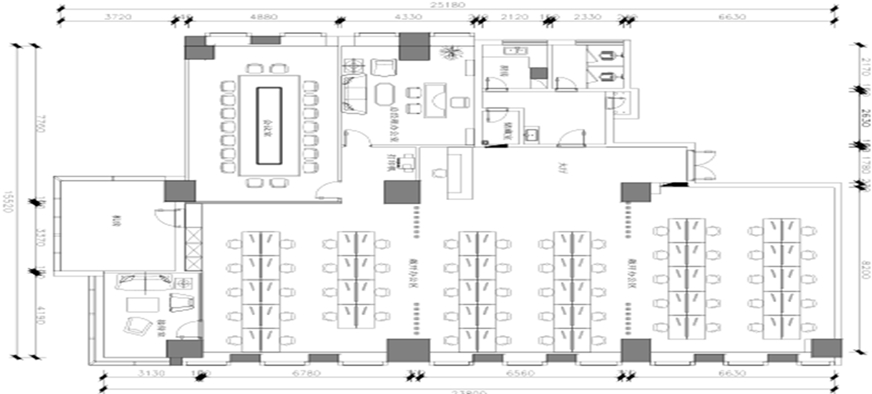
案例說明
整個項目大量使用深色木飾面,配合暖色燈光,使得整個空間沉穩大氣,同時地面選用深色花紋地毯,在起到靜音作用的同時,又能感受到空間工作莊重的感覺。
相關案例
熱門案例
熱門資訊
-
1
南昌幼兒園裝修設計,這樣的幼兒園才能讓孩子更舒適人氣:567 -
2人氣:687
-
3人氣:340
-
4人氣:329
-
5人氣:1075
-
6人氣:353
-
7人氣:326
-
8人氣:332
-
9人氣:462
-
10人氣:338













官方微信
益昌商學院